成都房地产门户网站
快搜:
新房
二手房
租房
写字楼
商铺厂房
资讯
-区域-
成华区
金牛区
锦江区
武侯区
青羊区
高新区
高新西区
温江区
新都区
龙泉区
青白江
郫都区
都江堰
双流
天府新区
新津
崇州
邛崃
大邑
彭州
蒲江
金堂
简阳市
其他
新房网首页
楼盘全集
4月开盘
楼盘点评
户型赏析
新盘促销
楼盘地图
购房指南
楼盘推广热线:18980000173
按区域查询:
成华区
金牛区
锦江区
武侯区
青羊区
高新区
高新西区
温江区
新都区
龙泉区
青白江
郫都区
都江堰
双流
天府新区
新津
崇州
邛崃
大邑
彭州
蒲江
金堂
简阳市
其他
按价格查询:
4000以下
4000-6000
6000-8000
8000-10000
1万以上
成都尾盘集合
按地铁查询:
地铁1号线
地铁2号线
地铁3号线
地铁4号线
地铁5号线
地铁6号线
地铁7号线
成灌快铁
您目前所在的位置:
网站首页
→
成都新房
→
户型赏析
→
优品道墅二十一
→ 户型图:
当前第
5
张 共 8 张
曦岸3号楼C1’ 跃层
4室2厅2卫
95
m
2
曦岸3号楼C1 跃层
4室2厅2卫
111
m
2
曦岸3号楼C2 跃层
4室2厅2卫
88
m
2
四期一批次A1 平层
3室2厅2卫
89
m
2
四期一批次A2 平层
3室2厅2卫
90
m
2
四期一批次A3 平层
4室2厅2卫
108
m
2
四期一批次A4 平层
3室2厅2卫
89
m
2
四期一批次A5 平层
2室2厅1卫
78
m
2
注:更多图片下次更新
欢迎给我们提供图片
QQ:6683184
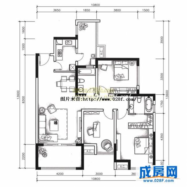
四期一批次A2 3室2厅2卫 平层
90
m
2
当前第
5
张 共 8 张
首页
|
关于我们
|
联系我们
|
网站地图
|
广告发布
|
改进建议
|
手机版
声明:本站所发布的成都新房、成都二手房、成都租房、成都酒店公寓等信息仅供参考,本站不承担任何法律责任。
本站关键字:
成都房产
成都房地产
成都房产网
成都房产信息网
成都租房
成都二手房
成都写字楼
成都商铺
成房网服务热线电话:028-86786173(周一至周六 9:00-17:30) 星期天及节假日值班热线:1898-0000-173
© 2004-2026 www.028f.com 成房网 版权所有 ICP备案号:
蜀ICP备2020029347号-2